Casa San Marino

Tipología: Casa de Playa

Año: 2020

Casa San Marino

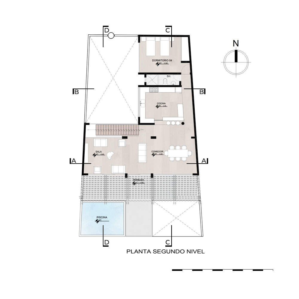
Casa San Marino es un elegante refugio costero de dos pisos que combina modernidad y naturaleza. Con amplios espacios abiertos y una decoración minimalista en madera, esta casa de playa se integra perfectamente con su entorno. Disfruta de la serenidad en su piscina privada, mientras que el diseño interior destaca por su sencillez sofisticada y su conexión fluida con el exterior.

SALA

Casa San Marino

Proyecto: Casa San Marino

Tipologia: Casa de Playa

Ubicación: San Marino - Arequipa

Año: 2020

PATIO
COCINA
PISCINA
Abrir chat
Hola
¿En qué podemos ayudarte?